
Mercuriusstraat 44 GRONINGEN
vraagprijs € 349.000 k.k.
Woonhuis - woonoppervlakte 98 m2 -
vraagprijs
€ 349.000 k.k.
Kenmerken
Overdracht
| Status | Onder bod |
|---|---|
| Prijs | € 349.000 Kosten koper |
| Aanvaarding | in overleg |
Refresh to make it work.
Contact met de makelaar
Omschrijving
Goed onderhouden en modern afgewerkte eengezinswoning met 4 slaapkamers op een ideale locatie!
Gelegen aan de Mercuriusstraat in Paddepoel-Noord vind je deze instapklare woning. De Mercuriusstraat is een rustig straatje aan de noordkant van Paddepoel. Je woont hier heerlijk rustig met het groene Park Selwerd om de hoek. Voor je dagelijkse boodschappen kan je terecht bij de buurtsupermarkt of het grote overdekte winkelcentrum van Paddepoel. Het Zernikecomplex is op enkele fietsminuten te bereiken. Wil je de stad uit? Vanaf hier zit je met de auto ook zo op de ringweg.
Indeling:
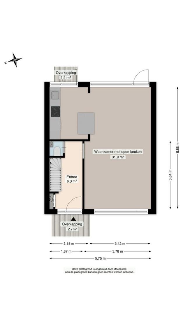
Kom binnen bij nummer 44 en laat je verrassen door dit leuke huis. De entree is van een goed formaat zodat je genoeg plek hebt voor al je jassen en schoenen. Hier zijn ook de trap naar boven, meterkast en het toilet gesitueerd. Het toilet is keurig betegeld en voorzien van een wandcloset en fonteintje. Middels de moderne glazen deur kom je in de woonkamer met open keuken. De ruimte is totaal ca. 32 m² groot en voorzien van veel lichtinval door de grote raampartijen aan de voor- en achterzijde. De hele leefruimte is voorzien van een fraaie PVC-visgraatvloer met vloerverwarming. De royale keuken is in 2022 vernieuwd en voorzien van luxe inbouwapparatuur waaronder een Quooker kokend-waterkraan, kookplaat met geïntegreerde afzuigkap, oven, vaatwasser, koelkast en vriezer. De keuken heeft een kookeiland waar je heel gezellig kan zitten. De keuken biedt toegang tot de heerlijk zonnige tuin op het zuidwesten. Hier geniet je lekker lang van het zonnetje of zoek de schaduw op onder de gezellige overkapping. De tuin is ook bereikbaar via een achterom en is voorzien van een handige berging voor al je fietsen en tuingereedschap.
Op de eerste verdieping zijn drie slaapkamers van ca. 14, 10 en 6 m² aanwezig. Op deze verdieping is ook de keurige badkamer gesitueerd. De badkamer is in 2022 vernieuwd en voorzien van modern tegelwerk en fraaie goudkleurige kranen. De badkamer is uitgerust met een tweede toilet, dubbele wastafel en een royale inloopdouche.
Middels een vaste trap kom je op de verrassende tweede verdieping. Hier kom je op de overloop waar je veel bergruimte hebt. Op deze verdieping is er een wasruimte met CV-opstelling van ca. 2 m² en daarnaast nog een ruime vierde slaapkamer van ca. 12 m². Door de dakkapel voelt het hier licht en ruimtelijk aan.
Kortom, het perfecte gezinshuis op een leuke locatie aan de rand van de stad. Wil je dit fijne huis zelf ervaren? Bel ons snel en kom langs voor een bezichtiging.
Bijzonderheden:
- Goed geïsoleerd (energielabel B);
- Voorzien van vloerverwarming op de begane grond;
- Voor- en achtertuin (voortuin gemeentegrond);
- Keuken en badkamer vernieuwd in 2022;
- Aanvaarding in overleg.
Gelegen aan de Mercuriusstraat in Paddepoel-Noord vind je deze instapklare woning. De Mercuriusstraat is een rustig straatje aan de noordkant van Paddepoel. Je woont hier heerlijk rustig met het groene Park Selwerd om de hoek. Voor je dagelijkse boodschappen kan je terecht bij de buurtsupermarkt of het grote overdekte winkelcentrum van Paddepoel. Het Zernikecomplex is op enkele fietsminuten te bereiken. Wil je de stad uit? Vanaf hier zit je met de auto ook zo op de ringweg.
Indeling:
Kom binnen bij nummer 44 en laat je verrassen door dit leuke huis. De entree is van een goed formaat zodat je genoeg plek hebt voor al je jassen en schoenen. Hier zijn ook de trap naar boven, meterkast en het toilet gesitueerd. Het toilet is keurig betegeld en voorzien van een wandcloset en fonteintje. Middels de moderne glazen deur kom je in de woonkamer met open keuken. De ruimte is totaal ca. 32 m² groot en voorzien van veel lichtinval door de grote raampartijen aan de voor- en achterzijde. De hele leefruimte is voorzien van een fraaie PVC-visgraatvloer met vloerverwarming. De royale keuken is in 2022 vernieuwd en voorzien van luxe inbouwapparatuur waaronder een Quooker kokend-waterkraan, kookplaat met geïntegreerde afzuigkap, oven, vaatwasser, koelkast en vriezer. De keuken heeft een kookeiland waar je heel gezellig kan zitten. De keuken biedt toegang tot de heerlijk zonnige tuin op het zuidwesten. Hier geniet je lekker lang van het zonnetje of zoek de schaduw op onder de gezellige overkapping. De tuin is ook bereikbaar via een achterom en is voorzien van een handige berging voor al je fietsen en tuingereedschap.
Op de eerste verdieping zijn drie slaapkamers van ca. 14, 10 en 6 m² aanwezig. Op deze verdieping is ook de keurige badkamer gesitueerd. De badkamer is in 2022 vernieuwd en voorzien van modern tegelwerk en fraaie goudkleurige kranen. De badkamer is uitgerust met een tweede toilet, dubbele wastafel en een royale inloopdouche.
Middels een vaste trap kom je op de verrassende tweede verdieping. Hier kom je op de overloop waar je veel bergruimte hebt. Op deze verdieping is er een wasruimte met CV-opstelling van ca. 2 m² en daarnaast nog een ruime vierde slaapkamer van ca. 12 m². Door de dakkapel voelt het hier licht en ruimtelijk aan.
Kortom, het perfecte gezinshuis op een leuke locatie aan de rand van de stad. Wil je dit fijne huis zelf ervaren? Bel ons snel en kom langs voor een bezichtiging.
Bijzonderheden:
- Goed geïsoleerd (energielabel B);
- Voorzien van vloerverwarming op de begane grond;
- Voor- en achtertuin (voortuin gemeentegrond);
- Keuken en badkamer vernieuwd in 2022;
- Aanvaarding in overleg.
Plan een bezichtiging
voor: Mercuriusstraat 44
Wil jij deze woning bezichtigen? Of heb jij een vraag over dit huis? Neem vrijblijvend contact met ons op door even te bellen naar 050 3182118. Of vul het contactformulier in en wij helpen je zo snel mogelijk.

















































