
Oldekerkermeer 12 OLDEKERK
vraagprijs € 435.000 k.k.
Woonhuis - woonoppervlakte 123 m2 -
vraagprijs
€ 435.000 k.k.
Kenmerken
Overdracht
| Status | Beschikbaar |
|---|---|
| Prijs | € 435.000 Kosten koper |
| Aanvaarding | in overleg |
Refresh to make it work.
Contact met de makelaar
Omschrijving
Ben je op zoek naar een moderne TWEE-ONDER-EEN-KAPWONING uit 2014 gelegen aan een rustige woonstraat met vrij uitzicht over landerijen! Dan is deze onderhoudsvriendelijke en energiezuinige woning, middels kunststof kozijnen, vloerverwarming, grote raampartijen de ideale combinatie voor comfort, ruimte en prettig wonen.
Met drie slaapkamers op de eerste verdieping, de mogelijkheid voor een vierde slaapkamer op de tweede verdieping, een verzorgd en zonnige aangelegde tuin op het zuiden met ruime houten berging en aangrenzend een fijne overkapping, maakt het tot een complete gezinswoning in een geliefde woonomgeving.
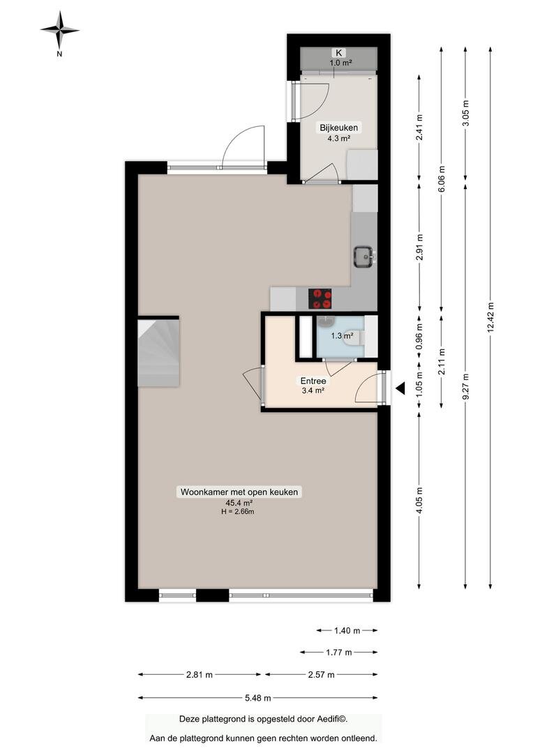
Indeling begane grond:
Entree/hal met meterkast en een modern (hangend) toilet plus fonteintje. Ruime en lichte woonkamer met een open indeling. Halfopen moderne keuken met openslaande deuren naar de tuin. De keuken is uitgerust met diverse inbouwapparatuur, waaronder een inductiekookplaat, vaatwasser, koel-/vrieskast en combi-magnetron. Aansluitend bevindt zich de bijkeuken met extra bergruimte plus witgoedaansluiting. Deze totale ruimte komt op circa 45 m2 voorzien van vloerverwarming en afgewerkt met moderne pvc vloer.
Indeling eerste verdieping:
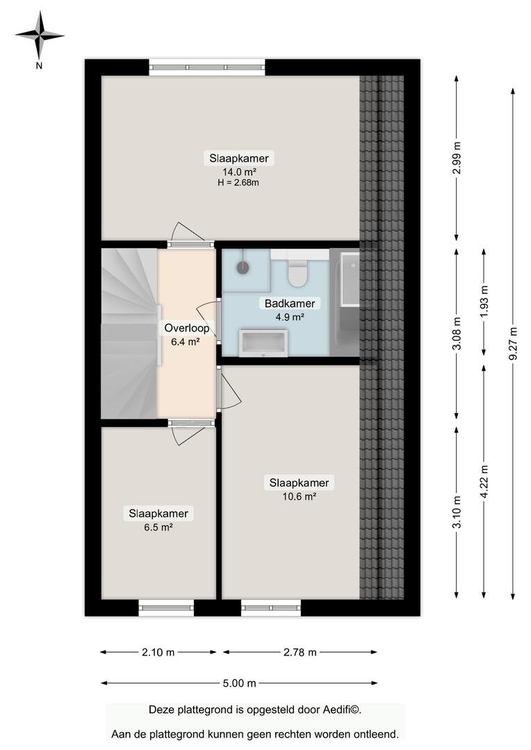
Op de eerste verdieping bevinden zich drie slaapkamers, elk voorzien van vloerverwarming en een moderne pvc-vloer. De grootste slaapkamer is voorzien van een airco en elektrisch bedienbare screens. De moderne badkamer is ingericht met een inloopdouche, wastafelmeubel, ligbad en een toilet.
Indeling tweede verdieping:
Via een vaste trap bereik je de tweede verdieping. Je komt boven op een ruime overloop met veel lichtinval en volop mogelijkheden voor bijvoorbeeld een werkplek, hobbyruimte of extra slaapkamer. Tevens de opstelling voor de witgoedaansluitingen en HR-combiketel.
Enkele pluspunten op een rij:
* Ruime en lichte woonkamer met PVC-vloer;
* Moderne keuken met diverse inbouwapparatuur;
* Vloerverwarming op de begane grond en eerste verdieping;
* Moderne badkamer met ligbad en separate douche;
* Verzorgde achtertuin op het zuiden met ruime berging met overkapping;
* 12 zonnepanelen en waterontharder;
* Volledig geïsoleerd en voorzien van HR++ glas;
* Airco (kan verwarmen en koelen);
* Energielabel A+
Rustig wonen met alles dichtbij
Oldekerk is een vriendelijk dorp met een hechte gemeenschap, omringd door groen en rust. Via de N980 rijd je in korte tijd naar Grootegast of Zuidhorn, en ook met het openbaar vervoer ben je hier goed verbonden. In het dorp zelf vind je een basisschool, winkels en kinderopvang, terwijl buurdorp Niekerk nog meer voorzieningen biedt zoals een supermarkt en sportverenigingen. Voor wie graag rustig woont maar wel alles binnen handbereik wil hebben, is dit een uitstekende plek om van het leven te genieten.
Startersregeling
Ben je of zijn jullie jonger dan 35 jaar en heb je nog niet eerder gebruikgemaakt van een vrijstelling van overdrachtsbelasting? Dan kun je eenmalig gebruikmaken van deze vrijstelling. De woning moet dan wel voor eigen gebruik zijn en de koopsom onder de € 525.000,= (regeling 2025) en onder de € 555.000,= (regeling 2026) blijven. Ook als één van beiden jonger is dan 35 jaar, kun je (gedeeltelijk) gebruikmaken van deze regeling.
Met drie slaapkamers op de eerste verdieping, de mogelijkheid voor een vierde slaapkamer op de tweede verdieping, een verzorgd en zonnige aangelegde tuin op het zuiden met ruime houten berging en aangrenzend een fijne overkapping, maakt het tot een complete gezinswoning in een geliefde woonomgeving.
Indeling begane grond:
Entree/hal met meterkast en een modern (hangend) toilet plus fonteintje. Ruime en lichte woonkamer met een open indeling. Halfopen moderne keuken met openslaande deuren naar de tuin. De keuken is uitgerust met diverse inbouwapparatuur, waaronder een inductiekookplaat, vaatwasser, koel-/vrieskast en combi-magnetron. Aansluitend bevindt zich de bijkeuken met extra bergruimte plus witgoedaansluiting. Deze totale ruimte komt op circa 45 m2 voorzien van vloerverwarming en afgewerkt met moderne pvc vloer.
Indeling eerste verdieping:
Op de eerste verdieping bevinden zich drie slaapkamers, elk voorzien van vloerverwarming en een moderne pvc-vloer. De grootste slaapkamer is voorzien van een airco en elektrisch bedienbare screens. De moderne badkamer is ingericht met een inloopdouche, wastafelmeubel, ligbad en een toilet.
Indeling tweede verdieping:
Via een vaste trap bereik je de tweede verdieping. Je komt boven op een ruime overloop met veel lichtinval en volop mogelijkheden voor bijvoorbeeld een werkplek, hobbyruimte of extra slaapkamer. Tevens de opstelling voor de witgoedaansluitingen en HR-combiketel.
Enkele pluspunten op een rij:
* Ruime en lichte woonkamer met PVC-vloer;
* Moderne keuken met diverse inbouwapparatuur;
* Vloerverwarming op de begane grond en eerste verdieping;
* Moderne badkamer met ligbad en separate douche;
* Verzorgde achtertuin op het zuiden met ruime berging met overkapping;
* 12 zonnepanelen en waterontharder;
* Volledig geïsoleerd en voorzien van HR++ glas;
* Airco (kan verwarmen en koelen);
* Energielabel A+
Rustig wonen met alles dichtbij
Oldekerk is een vriendelijk dorp met een hechte gemeenschap, omringd door groen en rust. Via de N980 rijd je in korte tijd naar Grootegast of Zuidhorn, en ook met het openbaar vervoer ben je hier goed verbonden. In het dorp zelf vind je een basisschool, winkels en kinderopvang, terwijl buurdorp Niekerk nog meer voorzieningen biedt zoals een supermarkt en sportverenigingen. Voor wie graag rustig woont maar wel alles binnen handbereik wil hebben, is dit een uitstekende plek om van het leven te genieten.
Startersregeling
Ben je of zijn jullie jonger dan 35 jaar en heb je nog niet eerder gebruikgemaakt van een vrijstelling van overdrachtsbelasting? Dan kun je eenmalig gebruikmaken van deze vrijstelling. De woning moet dan wel voor eigen gebruik zijn en de koopsom onder de € 525.000,= (regeling 2025) en onder de € 555.000,= (regeling 2026) blijven. Ook als één van beiden jonger is dan 35 jaar, kun je (gedeeltelijk) gebruikmaken van deze regeling.
Plan een bezichtiging
voor: Oldekerkermeer 12
Wil jij deze woning bezichtigen? Of heb jij een vraag over dit huis? Neem vrijblijvend contact met ons op door even te bellen naar 050 3182118. Of vul het contactformulier in en wij helpen je zo snel mogelijk.























































